


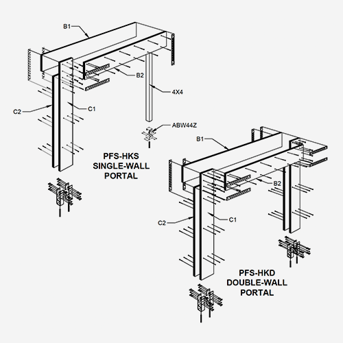
The code-listed Strong-Wall site-built portal frame system (PFS) provides designers, builders and contractors in prescriptive markets with an easy way to meet code-required wall-bracing requirements with narrow wall widths. Simple and quick to install, the PFS is a cost-effective alternative to IRC braced-wall solutions.