×
Image of Strong-Rod® Systems with purple background.

Strong-Rod® Systems

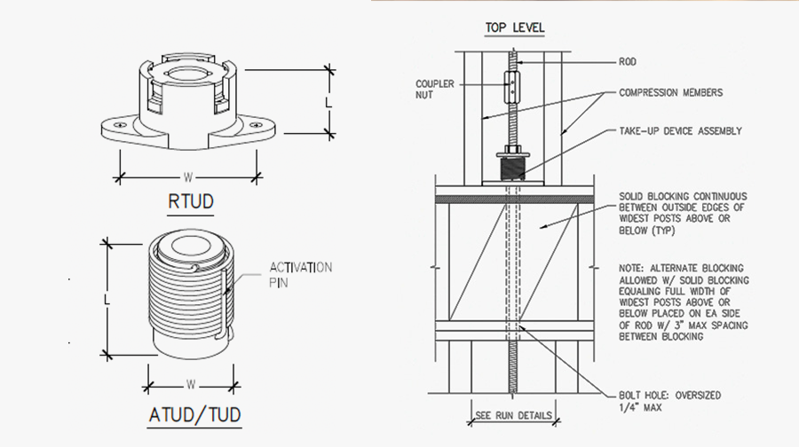
We put our product designs through rigorous testing at our cutting-edge research and development facilities in order to deliver best-in-class structural solutions to the market. Our high-performance Strong-Rod systems are designed with code-listed take-up devices for securing mid-rise, wood-framed buildings against forces caused by seismic and wind events. With innovative components that work together to create a continuous load path, Simpson Strong-Tie rod systems are built for maximum resilience and installation efficiency.

Smart Design from Product to Project

No company knows light-frame wood construction better than Simpson Strong-Tie. Our design support services provide the technical expertise needed to tackle the complex challenges posed by mid-rise buildings. Using your project’s unique design considerations and specifications, we can quickly create whole system designs, providing you a submittal-ready package of code-compliant components and plans to keep your project on time and within budget.